 |
Ort: Hamburg-Veddel
Bauherr: Freie und Hansestadt Hamburg,
bis zum Entwurf vertreten durch das Bezirksamt, Gartenbauabteilung
Hamburg-Mitte, danach durch die Behörde für Schule, Jugend
und Berufsbildung, Referat für Technische Bauangelegenheiten
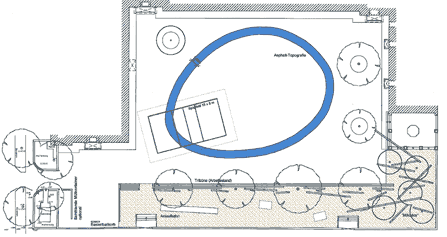
Planungsinhalte: Umgestaltung des Schulhofbereiches
für Schüler der Altersstufen ab Klasse 5 bis 9 der Hauptschule.
Die Idee war es, eine multifunktionale Aufenthaltszone zu schaffen,
in der sich die Schüler wieder wohl fühlen, aber auch Anreize
zur Bewegung erhalten. Zentrale Themen des Entwurfs sind daher die
'Bühne', die 'Ränge'und die 'Akteure'. Die Bühne wird
aus einer weichen Hofmodellierung erzeugt, im Grundriss bildet sie
ein Oval. Die Ränge werden aus einer ca. 45,0 m langen, sich
auflösenden Holztribüne (Höhe bis ca. 135 cm) im südlichen
Anschluss an den Hof gebildet, die als Aufenthalts- und Spielbereich
genutzt werden können. Die Akteure sind die Schüler, sie
bestimmen letztendlich das Geschehen durch ihre Kreativität.
|

  | |